Tragwerksplanung
- Büro- und Verwaltungsgebäude
- Hochschul- und Institutsgebäude
- Krankenhäuser
- Schulen und Kindergärten
- Hallen- und Freibäder
- Denkmalgeschützte Gebäude
- Kraftwerke
- Industriehallen
- Kläranlagen
- Brücken
- Baugrubenumschließungen, Baubehelfe
- Spezialkonstruktionen
Sanierung und Umbau
Marie-Therese-Gymnasium Erlangen
Himbeerpalast Erlangen
Hauptbahnhof Fürth
Schloss Erlangen, Sanierung Senatssaal und Einbau eines Aufzuges
Nutzungsänderung der ehem. Humbser Brauerei Fürth zu Gewerbe, Büro und Gastronomie
Abbruch, Umbau und Erweiterung des Gemeindehauses am Schlossplatz, Altdorf
Kulturwerkstatt auf AEG, Zentrum für Kultur und kulturelle Bildung, Nürnberg
Loftwerk Ulmenstraße, Nürnberg
Universitätsklinik Erlangen, Klinik mit Poliklinik für Kinder und Jugendliche
Universität Bayreuth, Aufstockung Geisteswissenschaften I
Umbau und Sanierung der Orangerie, Erlangen
Universität Erlangen-Nürnberg, Pathologisches Institut, Erlangen
Neubau
Generalsanierung Marie-Therese-Gymnasium Erlangen
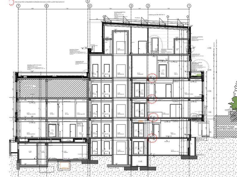
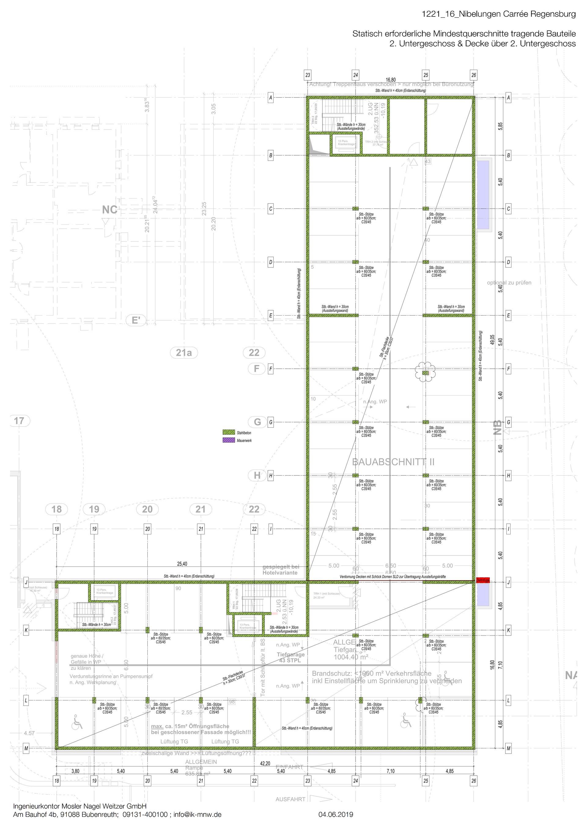
Nibelungen Carreé, Regensburg
Autobahnmeisterei Erbshausen
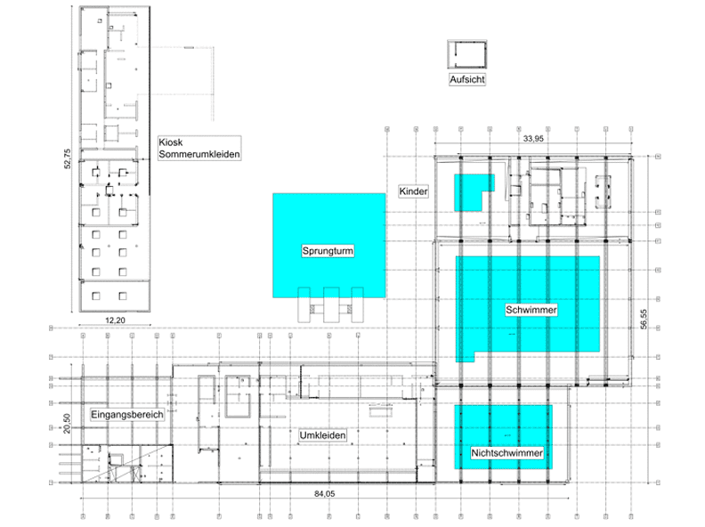
Sanierung Freibad West und Neubau Hallenbad, Erlangen
Klärwerk Erlangen, Neubau Energiezentrale, Sozialgebäude und Installationsgänge
Projektentwicklung und Nutzungsänderung Humbser Bräu, Fürth
Neubau eines Verwaltungsgebäudes mit Anbindung an das bestehende Bürogebäude der Zapf KG
Neubau Verwaltungsgebäude Fa. Demir GmbH, Pahreser Straße Nürnberg
Sangl GmbH & Co. KG
Spezialtransformatoren: Produktions- und Verwaltungsgebäude in Erlangen-Tennenlohe
Neubau einer Aussegnungshalle mit freistehendem Glockenturm in Buckenhof
Sanierung des Freibades Röthelheimbad Erlangen
Abu-Dhabi, Civil Defence
Aufstockung EDV- Gebäude mit Brücke
Erlanger Stadtwerke: Ersatzbau, Erlanger Stadtwerke
Universität Erlangen-Nürnberg, Neubau Institut für Kristallographie und Strukturphysik
Ingenieurbau
Klärwerk Erlangen, Schlammtrocknung und Phosphatabreicherung
Klärwerk Schweinfurt, Neubau Laborgebäude
Nachrechnung Brücken BW A73- 141 und A73 BW 142
Neubau 6000m³ Regenüberlaufbecken, Tennenlohe
Kernkraftwerk Olkiluoto – Rohrbrücke ULY
Klärwerk Erlangen: Neubau Mechanische Reinigung, Einlaufhebewerk, Rechengebäude
Kernkraftwerk Gösgen – Schweiz, ZC00 Erweiterung Hilfsanlagengebäude, Nasslager
Sonderkonstruktionen
Verstärkung der Färbertorbrücke für Schwerlastverkehr






























































